2+ Weekend House Trebnje
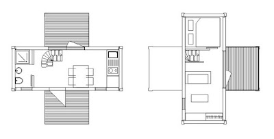
Project by Jure Kotnik Architects and ConHouse. This two level shipping container home is certainly minimalistic in its approach, with the building composed of two containers perpendicular to each other. The upper container provides a projecting roof above the entrance as well as serves to shelter the back terrace. The ceiling of the bottom container is also a terrace of the first floor.
Apparently the “The pink-dotted façade illustrates the wide range of possibilities for tailor-made exteriors, the choice of which is as simple as deciding about which mobile phone cover to put on”. Developed with the ConHouse system, (think Ikea with shipping containers) future home owners should be able to choose a number of modular designs from a catalogue and get them delivered for DYI install.













0 Comment " "